2020年12月2日上午,山东大学文化遗产研究院主办的长风论坛(鳌山034期)之“古代佛像着衣法式”讲座顺利举办。本次主讲嘉宾为北京联合大学教授、中国人民大学兼职教授、博士生导师陈悦新老师。讲座由山东大学文化遗产研究院高继习老师主持。
陈老师多年致力于佛教考古研究,著述丰富。讲座系统厘清了古代佛衣和僧衣的概念,并根据存世的印度和汉地佛教造像,全面梳理其演变脉络,配以现场辅助模拟演示,为山大师生及线上听众奉献了一场视觉及学术思想的盛宴。
陈悦新老师的讲座分为三个部分。
第一部分从文献角度介绍印度佛衣与僧衣。陈老师以东晋南北朝传下来的汉译“四律”(《十诵律》《四分律》《摩柯僧祇律》和《五分律》)为主,结合唐宋时期的汉籍文献,如《大唐西域记》和《南海寄归内法传》,阐述了印度佛衣和僧衣的基本概念。
(1)佛衣与僧衣是一样的。《四分律》卷四O《衣揵度》载:“(世尊言,)……佛弟子着如是衣如我今日。”
(2)佛衣与僧衣产生的根源在于分别僧人与外道。《十诵律》卷二七《衣法》载:“世尊,愿令僧衣与外道衣异,使可分别。”
(3)佛衣与僧衣的制定是阿难根据佛的指示,效法排列整齐的稻田,然后割截织物为长短不一的条,缝制成整张衣。《十诵律》卷二七《衣法》载:“佛告阿难:此深摩根衣能法此田作衣不?……从今日听着割截衣。”
(4)三衣名称。佛在寒夜中试验,得出三衣最适宜生存需要的结论,由内而外第一割截衣安陀会,第二割截衣欝多罗僧,第三割截衣僧伽梨。《十诵律》卷二七《衣法》载:“衣名三衣,若僧伽梨、若欝多罗僧、若安陀会。”
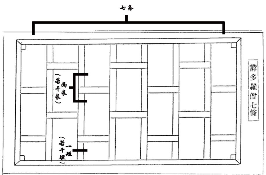
(5)三衣形状。三衣以“条”数区别,僧伽梨9条、欝多罗僧7条、安陀会5条。《十诵律》卷五《明三十尼耆法》载:“用作僧伽梨最下九条,成分别若干长若干短,总说九条……用作欝多罗僧七条,成分别若干长若干短,总说七条……用作安陀卫五条,成分别若干长若干短,总说五条。”

宋代元照《佛制比丘六物图》三衣图(采自《大正藏》卷四五)
(6)三衣大小。三衣多以“肘”为计量单位,各为橫长方形,僧伽梨最大,欝多罗僧次之,安陀会最小(也有僧伽梨与欝多罗僧等量的情况)。《四分律》卷四八《增一法》载:“上者(僧伽梨)长五肘、广三肘,下者(安陀会)长四肘、广二肘半,此二中间名为中(欝多罗僧)。”结合宋尺换算,上衣(僧伽梨)长2.8、宽1.7米,中衣(欝多罗僧)介于两者之间,下衣(安陀会)长2.3、宽1.1米。
(7)三衣披覆顺序。《大唐西域记》卷一载:“如来以僧伽胝(僧伽梨)方迭布下,次欝多罗僧,次僧却崎(僧祇支)。”由此可知佛衣外层为僧伽梨,中间为欝多罗僧,内层上身为僧祇支,是着三衣前披覆的衬身衣,内层下身应该为安陀会。
(8)三衣披覆方式。根据《南海寄归内法传》卷二《着衣法式》载:“以衣右角宽搭左肩,垂之背后,勿安肘上”等文献记载。总结出僧祇支覆胸露右肩、长及腰部,安陀会腰部系带、遮覆下体,僧伽梨和欝多罗僧是通体披覆。
第二部分从文献角度介绍汉地佛衣与僧衣。陈老师依据唐宋原来的汉籍文献,阐述汉地佛衣与僧衣的概念。根据《十诵律》卷48《增一法》:“佛言:听畜三种衣,上(僧伽梨)中(欝多罗僧)下(安陀会)”之例,将三衣称为上衣、中衣、下衣。
(1)汉地三衣大小的变化。唐日僧圆仁《入唐求法巡礼行记》卷一载“五条,绢二丈八尺五寸;七条,绢四丈七尺五寸;大衣,绢四丈”,结合唐尺换算,下衣长2.2、宽1.1米(印度:长2.3、宽1.1米);中衣长2.4、宽1.65米;上衣长2、宽1.65米(印度:长2.8、宽1.7米),根据文献记载的制衣手工费,得出汉地上衣小于中衣,但手工制作的费用高于中衣的认识。
(2)袈裟含义的变化。袈裟原为三衣别名,从唐代开始倾向于专指上衣“僧伽梨”。
(3)偏衫与直裰。僧衣在汉地的变化,根据宋代释道城集《释氏要览》卷上《偏衫》和元代德辉重编《勅修百丈清规》卷五《直裰》的记载,印度的僧祇支被改造为偏衫,而中衣被改造为直裰,裁剪的、有领有袖的汉服,逐渐取代部分三衣,只有上衣基本保留印度传统的形状(长方形割截衣)和披覆形式(袒右式)。
第三部分从图像角度加深对佛衣与僧衣的认识。基于一、二部分的文献梳理,三衣是不可分割的整体,因此要从三衣层次和三衣披覆形式两个方面来考虑造像中三衣的类别。
首先,根据三衣层次,将造像中的佛衣归为两大类,上衣外覆类(只看见上衣的披覆形式)和中衣外露类(中衣的披覆形式也可以看见)。其次,根据上衣披覆形式,将上衣外覆类分为通肩式、袒右式、覆肩袒右式、搭肘式和露胸通肩式五种样式;根据上衣和中衣披覆形式的变化,中衣外露类分为上衣搭肘式、上衣重层式和中衣搭肘式三种样式。
一、上衣外覆类:
1.通肩式佛衣:上衣自身后通覆两肩、右衣角绕颈搭左肩。

白沙瓦博物馆藏犍陀罗佛像(左) 大英博物馆藏犍陀罗佛像(右)
2.袒右式佛衣:上衣自身后覆左肩、右衣角由右腋下绕过搭左肩,露出右肩。

秣菟罗佛像(左) 大英博物馆藏犍陀罗佛像(右)
3.覆肩袒右式佛衣:上衣自身后通覆两肩,右衣角由右腋下方绕过搭左肩,露出右胸和右臂。

云冈20窟正壁佛像(左) 青州龙兴寺佛立像(右)
4.搭肘式:上衣自身后通覆两肩,右衣角自右臂下方绕过搭左肘。

炳灵寺169窟西秦建宏元年佛像(左) 莫高窟435窟、431窟佛像(右)
5.露胸通肩式:上衣自身后通覆两肩,右衣角搭左肩;颈下衣缘呈“U”形垂至胸部。

青州龙兴寺天平三年佛像(左) 青州龙兴寺佛立像(右)
二、中衣外露类
1.上衣搭肘式:上衣自身后通覆两肩,右衣角自胸腹前横过搭左肘;中衣与露胸通肩或与上衣披覆形式相似。

云冈13窟佛像(左) 云冈6窟右壁上层右侧佛像(右)(着色表示中衣)
2.上衣重层式:在上衣搭肘式佛衣的外面再增加一重上衣。《大正藏》卷二三,三衣有重复披覆的情况,故将上衣外所披覆的拟名重层上衣。

龙门宾阳中洞正壁佛像(左) 巩县1窟中心柱正壁佛像(右)(着色表示重层上衣)
3.中衣搭肘式:中衣自身后通覆两肩,右衣角垂搭右肘;上衣自身后覆左肩,右衣角自右腋下绕过搭左肩。

南响堂1窟中心柱正壁佛像(左) 上海博物馆藏金铜佛像 唐(右)
榆林窟25窟左壁佛像 中唐(左) 黑水城绢画 西夏(右)
在梳理佛衣各种披覆样式中,陈老师指出用“褒衣博带”与“悬裳座”两个概念来描述佛像着衣,是不准确、不合适的。“褒衣博带”与“裳悬座”仅表示着衣风格,而不能表达佛衣的披覆概念。同样,将中衣搭肘式理解为“双领下垂”也是有误的。其后,陈老师简要说明法上僧服改制的概念,认为中衣搭肘式这种样式的佛衣,其外层的上衣是袒右式的印度传统,正是这一点使服制“道俗两异”。
此外,在列举佛衣八种披覆样式后,陈老师对僧衣的披覆样式也做了简单介绍,以中衣直裰式为重点。僧衣同样分为上衣外覆类和中衣外露类。上衣外覆类以通肩式、袒右式为主;中衣外露类以中衣搭肘式和中衣直裰式为主。其中,中衣直裰式僧衣样式为:内着交领有袖偏衫,中衣为交领、大袖的连体衣直裰;上衣自身后覆左肩、右衣角由右腋下方绕过搭左肩与钩钮联结。

灵岩寺宋熙宁三年罗汉像(左) 火努鲁鲁美术馆藏宋元符二年干漆僧像(右)(着色表示中衣)
通过从文献和实物造像两个方面的梳理,得出结论,印度佛衣与僧衣相同;而汉地佛衣与僧衣源一流二,两者的汉化程度不同,僧衣的汉化更为彻底,有领有袖裁剪的汉服逐渐取代部分三衣,只有上衣保留印度传统的形制和披覆形式。
讲座最后,陈悦新老师还利用模拟演示的方法,帮助观众加深对佛像着衣的理解,并对参会师生所提问题给予了耐心与细致的解答。高继习老师对讲座内容做了简要总结,并代表参会师生向陈老师的精彩报告表示感谢。本次讲座采用腾讯会议线上与山东大学青岛校区课堂线下两种形式相结合,吸引了山东大学考古文博专业的师生以及全国各地考古文博单位同仁300多人参加,实现了良好的教育功能及文化传播效果。(文/陈虹羽,图/主讲人PPT)
